- Woonoppervlakte
- Circa 116 m²
- Perceeloppervlakte
- Circa 151 m²
- Bouwjaar
- Gebouwd in 1981
- Aantal kamers
- 6 kamers (3 slaapkamers)
ANTON Makelaardij biedt aan: Zoom 15-26 te Lelystad!
Alle informatie over deze woning is te vinden op: zoom15-26.nl
Locatie, locatie, locatie! Zelden wordt er een woning op deze toplocatie te koop aangeboden. Bent u op zoek naar een speelse drive-inwoning met uitzicht over het Gelderse Diep? Deze verrassend ruime woning, voorzien van een inpandige garage, is zeker een bezichtiging waard!
Aan een rustig hofje, in de groene, waterrijke en zeer populaire woonwijk 'Zoom', staat deze ruime eengezinswoning direct grenzend aan het Gelderse Diep. Deze drive-inwoning is nagenoeg geheel voorzien van kunststof kozijnen en heeft een gezellige en speelse indeling. Op de begane grond bevinden zich de garage en een slaapkamer/kantoorruimte. De ruime, lichte woonkamer, nette keuken en de overloop met toiletruimte bevinden zich op de eerste verdieping, welke tevens een balkon biedt met vrij uitzicht op het vaarwater van het Gelderse Diep. Op de tweede verdieping zijn er twee ruime slaapkamers, een waskamer (een derde slaapkamer is mogelijk) en de badkamer. De fraai aangelegde tuin ligt op het zuiden en grenst vrijwel aan het kanaal. Parkeren kan uiteraard op eigen terrein.
De woning ligt op een steenworp afstand van het prachtige Woldbos en het Gelderse Hout, waar u uren kunt genieten van de mooie natuur die Lelystad te bieden heeft. Het vaarwater van het Gelderse Diep is bereikbaar via de achtertuin, waar u bovendien de mogelijkheid heeft om uw boot aan te meren. Daarnaast is het buurtwinkelcentrum evenals diverse basis- en middelbare scholen op loop- of fietsafstand te bereiken. Binnen enkele minuten zijn de in- en uitvalswegen van Lelystad bereikbaar. Dit alles maakt het tot een uiterst comfortabele en prettige woonomgeving.
Bent u op zoek naar een ruime eengezinswoning op een toplocatie in de geliefde wijk 'Zoom'? Wij nodigen u van harte uit om Zoom 15-26 te komen bekijken! Voor een bezichtiging kunt u ons bellen, een aanvraag indienen via Funda of via de woningwebsite zoom15-26.nl. Deze schitterende woning wordt u aangeboden met een biedprijs vanaf € 350.000,- k.k. Biedingen vanaf dit bedrag zullen door de verkoper in behandeling worden genomen.
Indeling
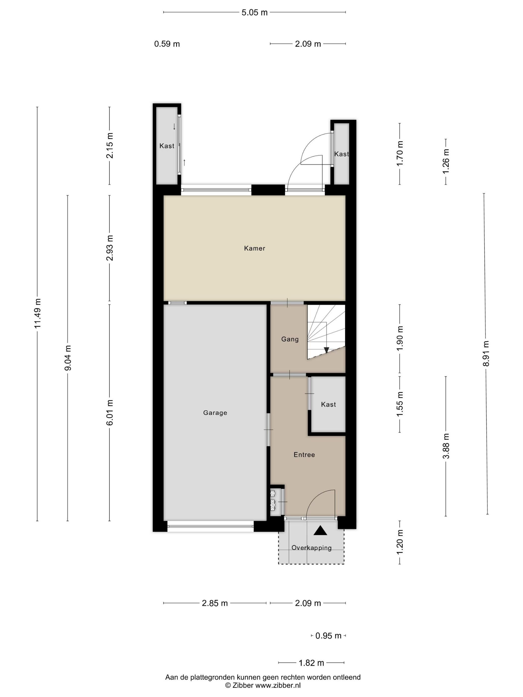
Begane grond:
Entree, garderobe, meterkast (glasvezel aanwezig), bergkast en deur naar de garage, welke voorzien is van radiator en handmatige garagedeur. Deur naar de hal met trap naar de eerste verdieping en doorgang naar de kantoorruimte/slaapkamer en tevens een deur naar de heerlijk groene tuin met achterom naar wandelpad langs kanaal het Gelderse Diep.
Eerste verdieping:
Overloop, toiletruimte met toilet en fonteintje, doorgang naar de keuken met koel/vriescombinatie, elektrisch fornuis, afzuigkap en schuifpui naar het balkon op het zuiden met elektrisch zonnescherm en vrij uitzicht op het Gelderse Diep. Doorgang naar de lichte woonkamer, welke is voorzien is van een gezellige houtkachel.
Tweede verdieping:
Ruime overloop met 2 royale slaapkamers (3de slaapkamer kan gerealiseerd worden) en een waskamer met opstelplaats voor de cv-ketel (ATAG P27C uit 2022) en wasmachine en droger aansluiting. Badkamer met inloopdouche, wastafel en toilet. Tevens is er nog een kleine vliering aanwezig en twee dakkapellen.
Bijzonderheden:
* Speelse drive inwoning op een top locatie;
* Nagenoeg volledig voorzien van kunststof kozijnen;
* Verrassend ruime woning met inpandige garage;
* Keuken met balkon op het zuiden en vrij uitzicht op vaarwater het Gelderse Diep;
* 2 ruime slaapkamers op de 2e verdieping, 3e slaapkamer kan gerealiseerd worden;
* Kantoor/slaapkamer op de begane grond;
* Fraai aangelegde tuin op het zuiden met achterom, grenzend aan het kanaal;
* Parkeren op eigen terrein;
* Geweldige ligging nabij het Woldbos, Gelderse Hout en direct aan vaarwater het Gelderse Diep;
* Energielabel B;
* Oplevering in overleg.
Deze informatie is door ons met de nodige zorgvuldigheid samengesteld. Onzerzijds wordt echter geen enkele aansprakelijkheid aanvaard voor enige onvolledigheid, onjuistheid of anderszins, dan wel de gevolgen daarvan. Alle opgegeven maten en oppervlakten zijn indicatief. Lees de volledige omschrijving
Overdracht
- Vraagprijs
- € 350.000 k.k.
- Status
- Verkocht onder voorbehoud
- Aanvaarding
- In overleg
Bouw
- Object type
- Eengezinswoning, tussenwoning (drive-in woning)
- Soort bouw
- Bestaande bouw
- Bouwjaar
- 1981
- Soort dak
- Zadeldak bedekt met pannen
Oppervlakte en inhoud
- Woonoppervlakte
- 116 m²
- Perceeloppervlakte
- 151 m²
- Inhoud
- 473 m³
- Externe bergruimte
- 2 m²
- Gebouwgeb. buitenruimte
- 6 m²
Indeling
- Aantal kamers
- 6 kamers (3 slaapkamers)
- Aantal badkamers
- 1 badkamer en 1 apart toilet
- Badkamervoorzieningen
- Inloopdouche, toilet, en wastafel
- Aantal woonlagen
- 3 woonlagen en een vliering
- Voorzieningen
- Buitenzonwering, dakraam, glasvezelkabel, natuurlijke ventilatie, rookkanaal, schuifpui, en TV kabel
Energie
- Energielabel
- B
- Energielabel registratie
- 26-08-2025
- Isolatie
- Dakisolatie, hr-glas en muurisolatie
- Verwarming
- Cv-ketel en houtkachel
- Warm water
- Cv-ketel
- Cv ketel
- Atag (gas gestookt combiketel uit 2022, eigendom)
Buitenruimte
- Ligging
- Aan rustige weg, beschutte ligging, in woonwijk en vrij uitzicht
- Balkon / dakterras
- Balkon aanwezig
- Tuin
- Achtertuin en voortuin
- Afmetingen achtertuin
- 52 m² (9,50 meter diep en 5,50 meter breed)
- ligging tuin
- Gelegen op het zuiden bereikbaar via achterom
Bergruimte
- Schuur / berging
- Aangebouwde houten berging
Garage
- Soort garage
- Inpandig
- Capaciteit
- 1 auto
- Voorzieningen
- Elektra en verwarming
Parkeergelegenheid
- Soort parkeergelegenheid
- Op eigen terrein
Energieverbruik in Lelystad
Energielabel deze woning
Energielabel B
Publicatie energielabel: 26-08-2025
Stroomverbruik per jaar
(Gemiddelde tussenwoning in Lelystad)
Gasverbruik per jaar
(Gemiddelde tussenwoning in Lelystad)
* Cijfers zijn afkomstig van het CBS en bedoeld als indicatie en kunnen verschillen voor deze woning
Indicatie hypotheeklasten
Eigen inleg:
Spaargeld / overwaarde
Rente:
Laagste 10-jaars rente
Laagste 10-jaars rente
2,75% - Centraal Beheer Groen... - NHG
3,05% - Centraal Beheer Groen... - 80%
Laagste 20-jaars rente
3,23% - Argenta Groen Hypothee... - NHG
3,44% - Argenta Groen Hypothee... - 80%
Laagste 30-jaars rente
3,4% - Argenta Groen Hypotheek... - NHG
3,61% - Argenta Groen Hypothee... - 80%
Hypotheek:
Bruto maandlasten: € 0 p/m
Netto maandlasten: € 0 p/m
Hoe berekenen we dit?
Het rentepercentage is gebaseerd op de laagste 10-jaars vaste rente voor één hypotheekdeel. De vermelde rente (2.75% met NHG) is gecontroleerd op 22-10-2025. Deze berekening is gebaseerd op een annuïteitenhypotheek die volledig wordt afgelost, waarbij de maandlasten gedurende de gehele looptijd gelijk blijven. De werkelijke rente en netto maandlasten kunnen variëren, afhankelijk van uw persoonlijke situatie en de hypotheekverstrekker. Raadpleeg een financieel adviseur voor een nauwkeurige berekening en advies. Aan deze berekening kunnen geen rechten worden ontleend; het dient enkel als indicatie.
Documentatie
Kadastrale kaart
Leefomgeving
BAG uittreksel
Plattegronden PDF
Energielabel B - Zoom 15-26 te Lelystad
Meetrapport - Zoom 15-26 te Lelystad
Lijst van zaken - Zoom 15-26 te Lelystad
Vragenlijst deel B - Zoom 15-26 te Lelystad
Brochure
Bezichtiging
Bod uitbrengen
Waardebepaling
Zoekopdracht
Alles downloaden
Zonnegrenzen bekijken
Op de kaart
Inwoners in Lelystad
Cijfers voor postcodegebied 8225
- Totaal aantal inwoners
- 8100 inwoners
- Mannen
- 51%
- Vrouwen
- 49%
Inwoners in Lelystad
Cijfers voor postcodegebied 8225
- tot 15 jaar
- 17%
- 15 tot 25 jaar
- 12%
- 25 tot 35 jaar
- 29%
- 45 tot 65 jaar
- 26%
- 65 en ouder
- 16%
Huishoudens in Lelystad
Cijfers voor postcodegebied 8225
- Eenpersoons zonder kinderen
- 39%
- Meerpersoons zonder kinderen
- 24%
- Huishoudens zonder kinderen
- 63%
Huishoudens in Lelystad
Cijfers voor postcodegebied 8225
- Huishoudens met één kind
- 13%
- Huishoudens met meerdere kinderen
- 23%
- Huishoudens met kinderen
- 36%
Woningen in Lelystad
Cijfers voor postcodegebied 8225
- Woningen voor 1945
- 1%
- Woningen tussen 1945 en 1965
- 1%
- Woningen tussen 1965 en 1975
- 1%
- Woningen tussen 1975 en 1985
- 82%
- Woningen tussen 1985 en 1995
- 16%
Woningen in Lelystad
Cijfers voor postcodegebied 8225
- Woningen tussen 1995 en 2005
- 1%
- Woningen tussen 2005 en 2015
- 1%
- Woningen na 2015
- 1%
- Huurwoningen
- 40%
- Koopwoningen
- 60%
Overige in Lelystad
Cijfers voor postcodegebied 8225
- Gemiddelde WOZ waarde
- € 170.000,-
- Personen onder de 65 met uitkering
- 12%
Overige in Lelystad
Cijfers voor postcodegebied 8225
- Adressen per km²
- 1993
- Stedelijkheid (schaal 1 op 5)
- 80%
Korte feiten over Lelystad
Lelystad is de hoofdstad van de Nederlandse provincie Flevoland. De stad ligt in Oostelijk Flevoland en is daarvan de grootste stad, maar de gemeente ligt deels ook in Zuidelijk Flevoland.
ANTON Makelaardij
Indien u vragen heeft of u wilt een bezichtiging inplannen, dan kunt u gebruik maken van het formulier hiernaast. Er zal daarna op korte termijn contact met u worden opgenomen.
Contact opnemen
Wie is Anton?
Als je al bijna je hele leven in Flevoland woont met een geschiedenis van vele verhuizingen binnen de provincie, ken ik elke wijk en straat als mijn broekzak. Dit heeft me een sterk netwerk en diepgaande kennis van de regio opgeleverd. Mijn ervaring helpt me om kopers en verkopers optimaal te begeleiden bij hun woonwensen.
Begin 2019 maakte ik de overstap naar de woningmakelaardij, en vanaf dat moment wist ik het zeker: dit is waar mijn hart ligt! Het persoonlijke contact, de dynamiek van de huizenmarkt en de voldoening om mensen aan hun droomwoning te helpen, maken dit vak voor mij enorm waardevol.
Soms heb je het geluk om werk te doen dat écht bij je past. Voor mij is dat dagelijkse realiteit, want ik mag elke dag opnieuw doen wat ik het liefste doe! Het geeft me energie om klanten te ondersteunen bij een van de belangrijkste beslissingen in hun leven.
Nieuwste reviews
-
Tjalk 19 34
Wij zijn erg blij dat Anton ons heeft geholpen met de verkoop van ons huis. Hij kan snel schakelen, heeft altijd wel een oplossing en houdt...
-
Galjoen 06 61
Het contact met Anton was heel prettig. Hij heeft ons uitstekend geadviseerd, reageert snel, is deskundig en kent de woningmarkt in Lelystad...
-
Kamperfoelielaan 26
Prettige en kundige makelaar met de juiste verkoopstrategie waardoor woning snel was verkocht. Ook wordt elke stap in het proces zeer goed g...